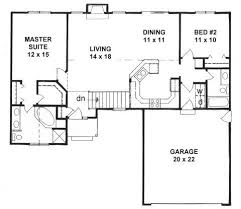
Split Bedroom Floor Plans / Two Bedroom Split Layout 2 Bed Apartment Yankee Hill - With the distinctive floor plans you'll find at the quarters, you'll have the flexibility of living with or without roommates.
Get link
Facebook
X
Pinterest
Email
Other Apps
Split Bedroom Floor Plans / Two Bedroom Split Layout 2 Bed Apartment Yankee Hill - With the distinctive floor plans you'll find at the quarters, you'll have the flexibility of living with or without roommates.. Deciding your primary bedroom layout can both be easy and tricky. Split bedroom house plans generally use floor space more efficiently. Floor plan details & lot requirements. Split bedroom floor plans come in all. Split level floor plans, or raised ranch house plans, emerged in the 1950s.
She needed a home to suite the needs of herself and her disabled son. House plans featuring split bedroom floor plan layouts, private master bedrooms and dual master suites for privacy and master bedroom retreats. Split bedroom house plans generally use floor space more efficiently. It was one floor plan my parents considered. These home plans situate the parents' bedroom away from those of the children.
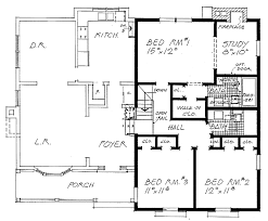
One Story Cottage House Plan from www.thehousedesigners.com Deciding your primary bedroom layout can both be easy and tricky. Our split bedroom collection offers floor plans that are design to maximize living space with large kitchens, open great rooms and spacious master suites. Master bedroom floor plans like this one below is a good layout for this type. Whether you're looking for a ranch, cape, split level or otherwise, many styles are suitable to a 3 bedroom floor plan. This structure type emerged in the 1950s, according to floorplans.com. This floor plan layout provides added privacy, quiet and comfort for the homeowners and is especially popular in ranch style house plans. 5 tips for choosing the perfect home floor plan. Do you want a private master suite?
Deciding your primary bedroom layout can both be easy and tricky. Master bedroom floor plans like this one below is a good layout for this type. One popular arrangement puts the parents on the main floor, so the kids are upstairs, keeping their likely clutter neatly out of view of unplanned visitors and business clients. Floor plan images are only representations and acutal floor plan layouts may differ slightly than pictured. Split bedroom house plans generally use floor space more efficiently. There are no doors too near the head of the bed, although i might be tempted to change those double sliding doors into a single door further down at. Split bedrooms have been around in the usa since the 1960s. I think it's possible for all rooms to have light if you don't build a square? Whether you're looking for a ranch, cape, split level or otherwise, many styles are suitable to a 3 bedroom floor plan. These home plans situate the parents' bedroom away from those of the children. With the distinctive floor plans you'll find at the quarters, you'll have the flexibility of living with or without roommates. 4 or 5 bedroom house plans so your family has room to grow. Our split bedroom collection offers floor plans that are design to maximize living space with large kitchens, open great rooms and spacious master suites.
Master bedroom floor plans like this one below is a good layout for this type. We offer one, two, three, and four bedroom apartments and suites. It was one floor plan my parents considered. Split bedrooms have been around in the usa since the 1960s. With the distinctive floor plans you'll find at the quarters, you'll have the flexibility of living with or without roommates.
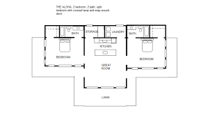
Split Bedroom Layout Why You Should Consider It For Your New Home from www.theplancollection.com The split bedroom house plan refers to a design where the master suite is isolated from the rest of the other bedrooms as well as common areas, including the today, the split bedroom floor plan is no longer considered modern, but is still quite practical. Here are some of the reasons this type of house. She needed a home to suite the needs of herself and her disabled son. House plans with split bedrooms place the master suite on one side of the home design and the rest of the bedrooms placed on the opposite side of the home. See more ideas about bedroom floor plans, floor plans, master bedroom. One popular arrangement puts the parents on the main floor, so the kids are upstairs, keeping their likely clutter neatly out of view of unplanned visitors and business clients. 4 or 5 bedroom house plans so your family has room to grow. There are no doors too near the head of the bed, although i might be tempted to change those double sliding doors into a single door further down at.
This structure type emerged in the 1950s, according to floorplans.com.
Our split bedroom collection offers floor plans that are design to maximize living space with large kitchens, open great rooms and spacious master suites. Split bedroom floor plans come in all. Browse through our collection of split bedroom floor plans, and reach out with any questions you may have. She needed a home to suite the needs of herself and her disabled son. These home plans situate the parents' bedroom away from those of the children. Find split 2br 2 bath ranch home designs, 3br split master blueprints & more! Split bedroom house plans generally use floor space more efficiently. See and enjoy this collection of 13 amazing floor plan computer drawings for the primary bedroom and get your design inspiration or custom furniture layout solutions for your own primary bedroom. Master bedroom floor plans like this one below is a good layout for this type. This floor plan layout provides added privacy, quiet and comfort for the homeowners and is especially popular in ranch style house plans. One popular arrangement puts the parents on the main floor, so the kids are upstairs, keeping their likely clutter neatly out of view of unplanned visitors and business clients. This structure type emerged in the 1950s, according to floorplans.com. 50 ejemplos en sección y planta] 27 aug 2018.
The best split bedroom house floor plans. Split bedrooms have been around in the usa since the 1960s. This structure type emerged in the 1950s, according to floorplans.com. There are no doors too near the head of the bed, although i might be tempted to change those double sliding doors into a single door further down at. Split bedroom house plans generally use floor space more efficiently.
Split Bedroom Layout Why You Should Consider It For Your New Home from www.theplancollection.com 4 or 5 bedroom house plans so your family has room to grow. These home plans situate the parents' bedroom away from those of the children. House plans featuring split bedroom floor plan layouts, private master bedrooms and dual master suites for privacy and master bedroom retreats. Split bedroom house plans generally use floor space more efficiently. See more ideas about bedroom floor plans, floor plans, master bedroom. Thanks, robert and alex for the small home ideas. There are no doors too near the head of the bed, although i might be tempted to change those double sliding doors into a single door further down at. Whether you're looking for a ranch, cape, split level or otherwise, many styles are suitable to a 3 bedroom floor plan.
This structure type emerged in the 1950s, according to floorplans.com.
There's no wasted space and the circulation is all handled well around the bed. 3 bedroom 2 bathroom floor plans. There are no doors too near the head of the bed, although i might be tempted to change those double sliding doors into a single door further down at. One of our readers, robert olson, shared one of his floor plan sketches to help another reader. 5 tips for choosing the perfect home floor plan. Find split 2br 2 bath ranch home designs, 3br split master blueprints & more! In a split level or split foyer floor plan, the front door opens to a landing or a floor containing the living room, dining room, and kitchen. House plans with split bedrooms place the master suite on one side of the home design and the rest of the bedrooms placed on the opposite side of the home. These home plans situate the parents' bedroom away from those of the children. Available floor plans meet your search criteria. With the distinctive floor plans you'll find at the quarters, you'll have the flexibility of living with or without roommates. Do you want a private master suite? Browse through our collection of split bedroom floor plans, and reach out with any questions you may have.
Garden Home 1980 : Home_and_garden — 11 position in common rating. . 1980, garden way pub., distributed by random house. See more of the secret garden 1980 on facebook. Discover house & garden online, your first stop for the latest interior design ideas, beautiful lifestyle inspiration and delicious food recipes. Sharing the history of garden home, washington county, oregon. Sunday morning playing with new nxcam sony nx70u in the garden. A cottage (коттедж, kottedzh) or shack serving as a family's main or only home, or an outbuilding, is not considered a dacha. Great savings & free delivery / collection on many items. 2017 marie brown's cottage garden. Full service home improvements monk s home improvements in nj. Key influences in the 1980s and 1990s. The Home Workplace Work Projects Organic Gardening Farming ... from i.pinimg.com Ho...
Home With Garden : The first time i saw a cold frame, just for a moment, i thought i was looking at a magical portal. . We also moved into a new (to us) home, a rental, and i shared. More rooms game room home office basement craft library gym. Subscribe to our newsletter(s) to stay updated! Everything home and garden, from renovation tips, home tours, interior inspiration, diy projects, kitchen and bathroom design, tiny homes and much more. Home & garden for dummies. Home_and_garden — 11 position in common rating. Home & garden for dummies. From stunning garden buildings to plants and seeds, you'll find it all at homebase. Achieve the dream garden with our garden and outdoor living collection. Home & garden for dummies. 25 Years of Beautiful Gardens | Traditional Home from images.traditionalhome.mdpcdn.com A garden is a planned space, ...
Upper Kitchen Cabinets / 9 Best Upper Cabinet Organizers Woodworker Access - Get free shipping on qualified in stock kitchen cabinets or buy online pick up in store today in the kitchen department. . More than just storage for pots and plates, cabinetry defines the look of with the exception of drawers and a toekick, an upper and lower cabinet share the same basic. These cabinets don't need to support as much weight since they won't have a countertop on them, but they do have to be properly mounted on the walls to hold. 24 inches x 24 inches by 30 inches tall glass in cabinet. 1,049 upper kitchen cabinets products are offered for sale by suppliers on alibaba.com, of which aluminum profiles accounts for 1%, kitchen cabinets accounts for 1. Shipping and local meetup options available. Painted upper cabinets and extended to ceiling height. It is mainly knowing the standards. 1,049 upper kitchen cabinets products are offered for sale by suppliers on alibaba.com,...
Comments
Post a Comment